Kalapuya Classroom Addition
Bethel Bond Kalapuya Classroom Addition


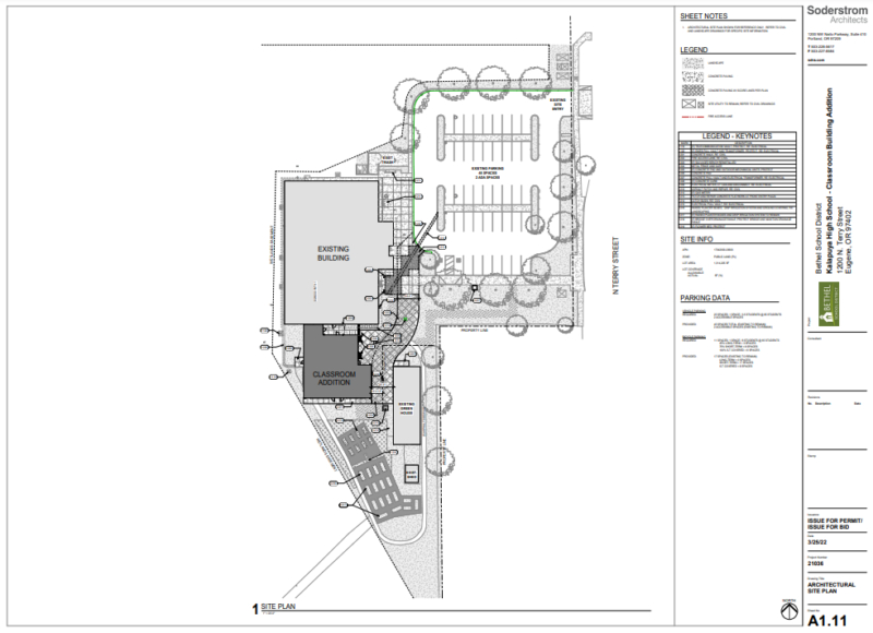
Plans for the New Classroom Addition!
Built in 2002 as one large open space, Kalapuya High School has no room for its growing Vocational Ed/Career Technical Ed (CTE) programs. Ground-breaking for a 3,450 sq. ft. addition is scheduled to take place this summer with a planned opening to students in the fall of 2023. The two-classroom addition will include much-needed storage area for Kalapuya’s expanding programs and easy access to the KHS greenhouse and the Bethel Farm.
- Soderstrom Architects IFP-IFB Drawings: click here for the drawing
- Soderstrom Architects Issue for Permit/Issue for Bid Specifications: click here to see the Google Drive
- Kalapuya High School – Classroom Building Addition – Addendum 1
- Kalapuya High School – Classroom Building Addition – Addendum 2
- Kalapuya High School – Classroom Building Addition – Addendum 3
- Kalapuya High School – Classroom Building Addition – Addendum 4
Additional settings for Safari Browser.
